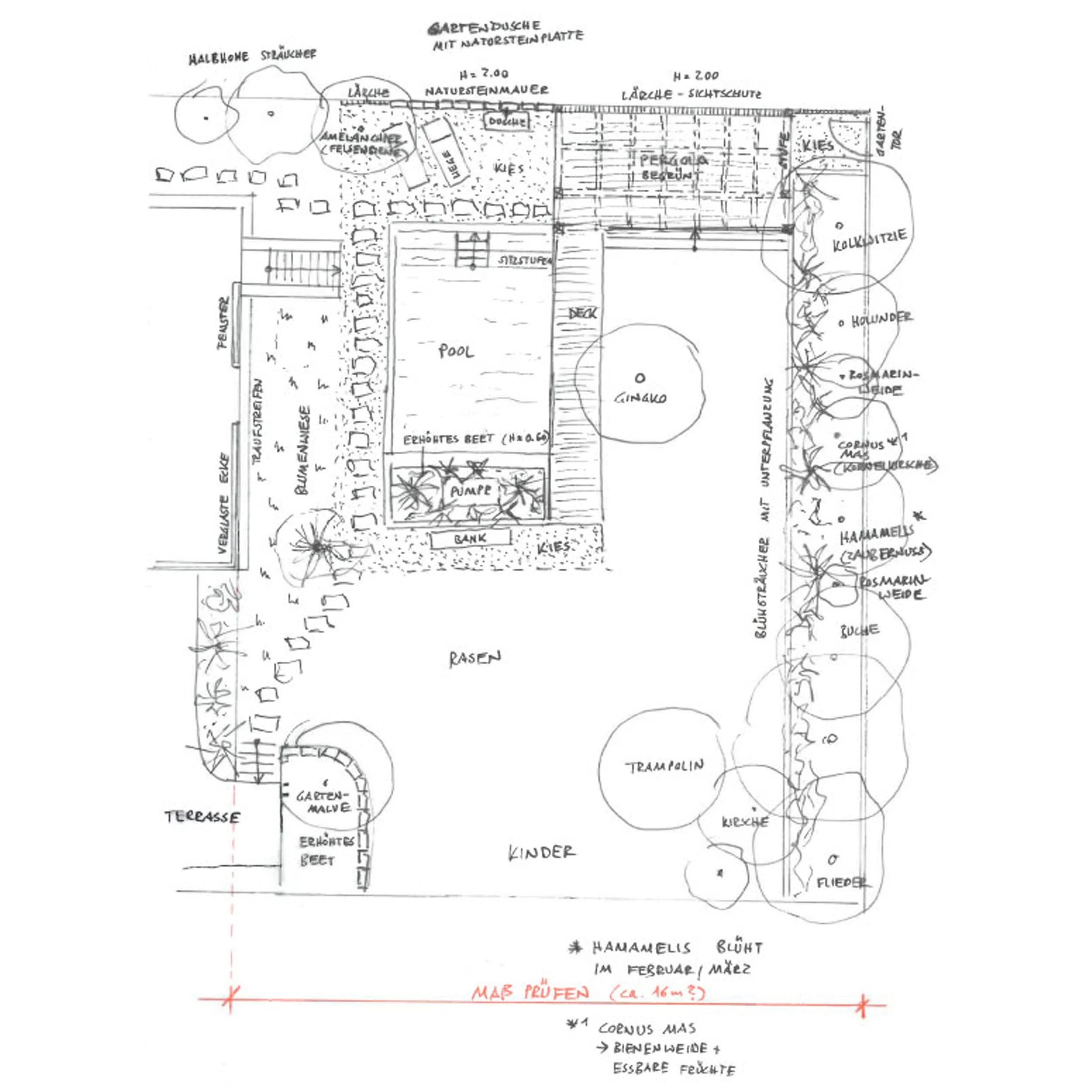
Gartengestaltung Karpatenstraßeumbau ddr-pool zum schwimmteichVon der ersten Entwurfsskizze bis zur Umsetzung für private Bauherren VORHER ERSTE SKIZZE ENTWURFSPLANUNG BLEISTIFTSKIZZE BESTANDSPOOL SCHWIMMTEICH IM BAU (Fa. Schwimmteichfürdich) SCHWIMMTEICH FAST FERTIG NUN WIRD AUFs GRÜN GEWARTET...